ALEN IMMOBILIER Agence
Télécharger la fiche
Nouveauté

Appartement 2 pièce(s) 1 chambre(s) 43.2 m²

La Ciotat (13600)
290 000 € Référence CP-BA-B24

A propos de ce bien

Nichée dans un quartier paisible de La Ciotat, à moins de 10 minutes à vélo des plages et du centre historique, cette résidence neuve allie confort contemporain et élégance méditerranéenne. Son jardin luxuriant, ses proportions intimistes et ses toitures en tuiles patinées créent une atmosphère authentique et raffinée. Du 2 au 4 pièces, chaque appartement s’ouvre sur un généreux espace extérieur – balcon, jardin privatif ou majestueuse terrasse en attique. Les agencements fluides et les orientations soigneusement étudiées créent des intérieurs lumineux, aussi fonctionnels qu’harmonieux.

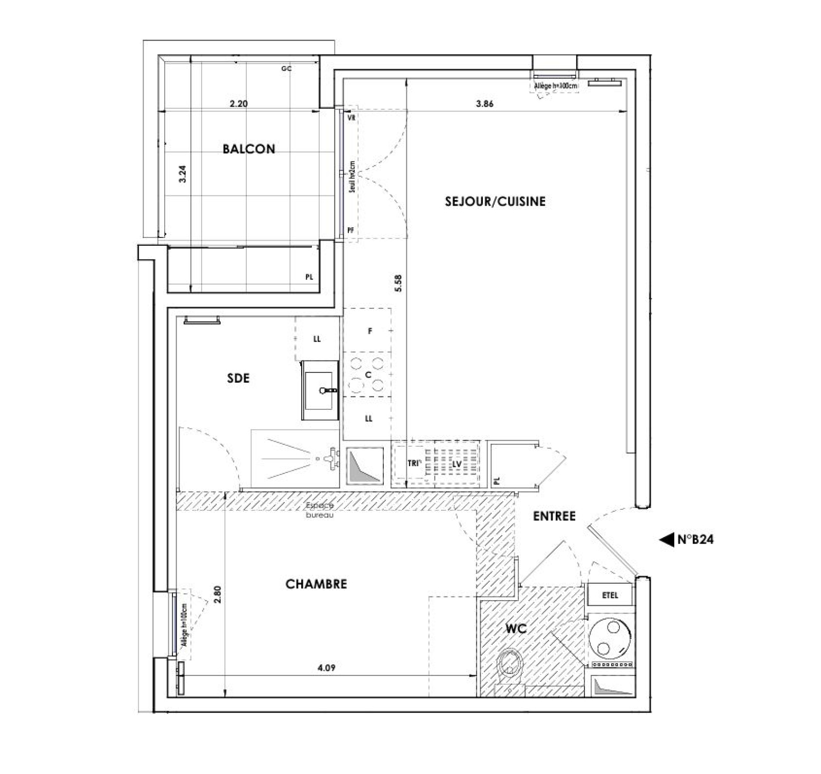
Au deuxième étage, un bel appartement de deux pièces avec balcon, se composant d'une entrée avec rangement donnant sur un séjour avec cuisine américaine disposant d'une grande baie vitrée et des portes fenêtres, lumineux, calme et donnant une impression de continuité vers l'extérieur mettant en valeur son bel espace. Côté nuit, une belle chambre, une salle d'eau et des WC séparés.

Enfin, une place de parking complète ce bien.

Photos non contractuelles, livraison 1T 2027, suggestion d’aménagement

Profitez d’un quotidien privilégié entre azur et collines, à deux pas des écoles et commerces, dans cette cité balnéaire au patrimoine exceptionnel.

Caractéristiques de ce bien

  • Surface 43,20 m²
  • carrez 43 m²
  • séjour 21 m²
  • 1 chambre(s)
  • 1 salle(s) d'eau
  • cuisine américaine
  • exposition Sud-Ouest
  • 2ème étage
  • 3 étage(s)
  • ascenseur
  • balcon

Diagnostics énergétiques

Consommation énergétique
A B C D E F G
Emission de gaz à effet de serre
A B C D E F G
DPE ANCIENNE VERSION

Informations financières

Prix de vente honoraires TTC inclus 290 000 €

Informations de copropriété

Copropriété Oui

Calcul des mensualités

* Champs obligatoires